Mietwohnung Heinestraße 1a, Wohng. Nr. 6
Adresse
Heinestr. 1a
99867 Gotha
Deutschland
Beschreibung
Neues 3-geschossiges Wohngebäude in Massivbauweise mit 6 Wohneinheiten (im EG barrierefrei) in bester Lage.
Die angebotene Wohnung liegt im 2.OG, hat ca. 89m² Wohnfläche mit 3 Zimmern zzgl. Küche, Bad u. Abstell-/Wäscheraum sowie einen großen Balkon. Küche und Bad sind mit Tageslichtfenstern und Lüftern ausgestattet. Im Bad befinden sich weiterhin eine Dusche, eine Badewanne, 2 Waschbecken und eine Toilette mit nachrüstbarer Bidet-Funktion. Fußbodenheizung, Rollladenkästen, Glasfaseranschluss und eine Videosprechanlage gehören ebenfalls zur modernen Wohnungsausstattung. Der Wohneinheit ist ein Stellplatz auf dem Grundstück mit Elektroladestation zugeordnet.
ACHTUNG!
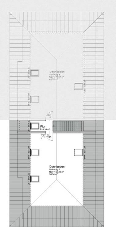
Zu dieser Wohnung wird ein sehr schöner Dachboden (ca. 38m²) mitvermietet. Er ist nicht zum dauerhaften Aufenthalt bestimmt (kein Wohn- oder Schlafraum), kann aber vielseitig als Lagerraum, Wäschetrockenplatz, Hobbyraum, Bibliothek o.ä. genutzt werden. Hierfür wird eine zusätzliche Pauschalmiete vereinbart!!!
Kaltmiete
€ 1.100,00
| Überblick Objekt Nr. 2026-01-06 | |
|---|---|
| Haustyp | Mehrfamilienhaus |
| Gesamtfläche ca. | 96 m² |
| Wohnfläche ca. | 89 m² |
| Sonstige Fläche ca. | 38 m² |
| Stellplatzart | Parkfläche auf dem Grundstück |
| Anzahl Stellplätze | 1 |
| Zustand | Erstbezug |
| Status | frei |
| Frei ab | 01.07.2026 |
| Zimmeranzahl | 3 |
| Anzahl Schlafzimmer | 2 |
| Anzahl Badezimmer | 1 |
| Heizungsart und Befeuerung | Zentralheizung, Fußbodenheizung, Wärmepumpenheizung |
| Ausstattungs-Kategorie | gehoben |
| Bodenbelag | Fliesen, Laminat |
| Baujahr | 2026 |
| Etage | 1 |
| Anzahl Etagen | 3 |
| Balkon/Terrasse | ja |
| Kaltmiete | € 1.100,00 |
| Miete/m² | € 12,36 |
| Nebenkosten | € 250,00 |
| Nebenkosten inkl. Heizung | ja |
| Kaution | € 2.200,00 |
| Miete für Garage/Stellplatz | € 65,00 |
Anbieter
- Hr. Dipl.-Ing. André Bühring
Ausstattung
- Fußbodenheizung (über zentrale Wärmepumpenanlage, photovoltaikgestützt)
- (feuchtegesteuerte) Raumlüfter
- Kunststofffenster mit 3-fach Verglasung
- Rollläden
- Fensterbänke aus Stein
- Wohnräume mit hochwertigem Laminatfußboden
- Badezimmer und Abstellraum mit Fliesenboden
- Tageslichtbad mit Badewanne und bodentiefer Dusche
- Gegensprechanlage mit integrierter Kamera
- Glasfaseranschluss
- Küchenlüfter nach Außen
- zusätzliche Dachbodennutzung
- PKW-Stellplatz im Außenbereich mit Elektrolademöglichkeit
Lage
In Zentrumsnähe im Denkmalensemble "Gründerzeit Weststadt", Nähe zu Schlosspark, Schule, Tennisplätzen; kurze Entfernungen zu Bäckern, Fleischer und Lebensmittelmärkten.
Fußweg zu öffentlichen Verkehrsmitteln: 1-3 Min.
Fahrzeit zum Haupt-/Busbahnhof (mit Straßenbahn): 10 Min.
Fahrzeit zur nächsten Autobahn (mit PKW): 10 Min.
Sonstiges



